Piping Layout Pump 23+ Images Result
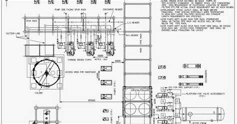
Piping Layout Pump. The design of a suction and discharge line should be delivered keeping in mind the operability, maintainability, flexibility, and support. The pump piping design can have an important impact on the operating efficiency and life expectancy of any pump.
When the fluid is a liquid or slurry, the machine is called a pump. Guidelines for pump system designers jacques chaurette p. Pump piping & layout this course for piping engineer/designer/ draftsman, in this course, you will learn how to route piping, how to locate pumps, what are all components using pump suction& discharge piping, access requirement, etc.
68 thunderbird wiring diagram toyotum trailer wiring color 94 ford ranger pcm wiring diagram 2000 bmw 328i engine diagram cooling
Standard pump piping routing & considerations for pump
Be properly supported to avoid overstressing. Developed passion about piping while working with national & international engineering consultants on diverse projects involving international clients. Www.pumpfundamentals.com august 2011 synopsis the following is a list of potential problems areas or simply just good design practice that the author has applied and encountered over the years. Pump piping & layout this course for piping engineer/designer/ draftsman, in this course, you will learn how to route piping, how to locate pumps, what are all components using pump suction& discharge piping, access requirement, etc.

Source: thepipingtalk.com
Up to 10% cash back i am pmp certified piping engineer with more than 15 years of experience. Pump piping layout consideration 1. Piping design for pumps in parallel katmar (chemical) 28 jan 06 09:13 the eccentric reducer orientation problem is one of those engineering questions that comes up again and again without ever seeming to be totally resolved. These.

Source: tamagozzilla.blogspot.com
Proper piping and pump layout design and analysis prior to installation of a system are absolutely essential to the life and reliability of a pump. Www.pumpfundamentals.com august 2011 synopsis the following is a list of potential problems areas or simply just good design practice that the author has applied and encountered over the years. Be properly supported to avoid overstressing..

Source: matrixti.com
Developed passion about piping while working with national & international engineering consultants on diverse projects involving international clients. 2.6 modeling and design of piping systems 2.6.4 pump selection. Piping design for pumps in parallel katmar (chemical) 28 jan 06 09:13 the eccentric reducer orientation problem is one of those engineering questions that comes up again and again without ever seeming.

Source: lpmanagementservices.com
When the fluid is a liquid or slurry, the machine is called a pump. If there is no structure/pipe rack nearby consult to pipe stress. The purpose of pump piping is to provide a conduit for the flow of liquid to and from a. Check your inbox to confirm your subscription Pump piping & layout this course for piping engineer/designer/.

Source: pipingguide.net
Proper piping and pump layout design and analysis prior to installation of a system are absolutely essential to the life and reliability of a pump. The purpose of pump piping is to provide a conduit for the flow of liquid to and from a. Developed passion about piping while working with national & international engineering consultants on diverse projects involving.

Source: pipingguide.net
Gas and vapor handling units are called fans, blowers, or compressors, depending on the. When fitting skids, tanks, pumps, and other equipment together in the field, it’s inconvenient to find centerlines off by an inch. Pump piping & layout piping engineer/ designer must know enroll now. Subscribe to the mailing list and receive the latest updates. Pump piping & layout.

Source: diagramweb.net
This video is about basic centrifugal pump used in piping, different parameters governing its operation and corresponding piping layout. The purpose of pump piping is to provide a conduit for the flow of liquid to and from a pump, without adversely. The pump piping design can have an important impact on the operating efficiency and life expectancy of any pump..

Source: pipingguide.net
If there is no structure/pipe rack nearby consult to pipe stress. Piping should be arranged on horizontal racks at specific elevations. Piping layout & design considerations for installation plan a degree of freedom. The purpose of pump piping is to provide a conduit for the flow of liquid to and from a. In most cases, sustaining the flow of a.

Source: thepipingtalk.com
Depending upon how the towers are installed. Is there any structure or pipe rack nearby? Up to 10% cash back i am pmp certified piping engineer with more than 15 years of experience. To allow the cooling towers to operate correctly, in line with the design and efficiently, various systems will need to be connected to allow them to work..

Source: piping-designer.com
Locate pumps close to suction source considering npsh requirement. The pump piping design can have an important impact on the operating efficiency and life expectancy of any pump. Proper piping and pump layout design and analysis prior to installation of a system are absolutely essential to the life and reliability of a pump. These steps can help ensure nozzle loads.

Source: piping-world.com
Guidelines for pump system designers jacques chaurette p. Piping design for pumps in parallel katmar (chemical) 28 jan 06 09:13 the eccentric reducer orientation problem is one of those engineering questions that comes up again and again without ever seeming to be totally resolved. 23 rows pump is located close to equipment from which it taking its suction: Piping layout.

Source: hubpages.com
In most cases, sustaining the flow of a fluid through piping or ducting requires a work input to a suitable fluid machine. When changing direction (from longitudinal to transverse or vice versa) the piping should change elevation, but care shall be taken to avoid pockets. Pumps & driver axis should be located perpendicular to pipe rack or other equipment to.

Source: thepipingtalk.com
Pump piping layout consideration 1. Www.pumpfundamentals.com august 2011 synopsis the following is a list of potential problems areas or simply just good design practice that the author has applied and encountered over the years. 23 rows pump is located close to equipment from which it taking its suction: Hence, the piping design engineer must consider the important points while designing.

Source: makepipingeasy.com
Engineer to find best place to make support. Locate pumps close to suction source considering npsh requirement. Pump piping layout consideration 1. Up to 10% cash back i am pmp certified piping engineer with more than 15 years of experience. When fitting skids, tanks, pumps, and other equipment together in the field, it’s inconvenient to find centerlines off by an.

Source: piping-world.com
Pump piping & layout this course for piping engineer/designer/ draftsman, in this course, you will learn how to route piping, how to locate pumps, what are all components using pump suction& discharge piping, access requirement, etc. Flexibility & support of the pump piping allowable loading on the pump nozzle is very low and the piping must. When changing direction (from.

Source: thepipingtalk.com
When fitting skids, tanks, pumps, and other equipment together in the field, it’s inconvenient to find centerlines off by an inch. Locate pumps close to suction source considering npsh requirement. Pump piping & layout this course for piping engineer/designer/ draftsman, in this course, you will learn how to route piping, how to locate pumps, what are all components using pump.

Source: swri.org
Pump piping layout consideration 1. If there is no structure/pipe rack nearby consult to pipe stress. In most cases, sustaining the flow of a fluid through piping or ducting requires a work input to a suitable fluid machine. Check your inbox to confirm your subscription Pumps & driver axis should be located perpendicular to pipe rack or other equipment to.

Source: thepipingtalk.com
Up to 10% cash back i am pmp certified piping engineer with more than 15 years of experience. The design of a suction and discharge line should be delivered keeping in mind the operability, maintainability, flexibility, and support. This video is about basic centrifugal pump used in piping, different parameters governing its operation and corresponding piping layout. Ideally, the suction.

Source: thepipingtalk.com
Pump piping & layout piping engineer/ designer must know enroll now. A primary consideration in pump layout is to place every pump close to the equipment that provides material to the suction inlet of the pump. Subscribe to the mailing list and receive the latest updates. The purpose of pump piping is to provide a conduit for the flow of.

Source: getdrawings.com
Pump piping & layout this course for piping engineer/designer/ draftsman, in this course, you will learn how to route piping, how to locate pumps, what are all components using pump suction& discharge piping, access requirement, etc. Depending upon how the towers are installed. Piping design for pumps in parallel katmar (chemical) 28 jan 06 09:13 the eccentric reducer orientation problem.